Multilocale in vendita

Francavilla Fontana, Via Barbaro forleo
€ 429.000
Prezzo aggiornato
5 locali 5 locali
437 Mq 437 Mq
1 bagno 1 bagno

Multilocale in vendita

Francavilla Fontana, Via Barbaro forleo

Descrizione annuncio

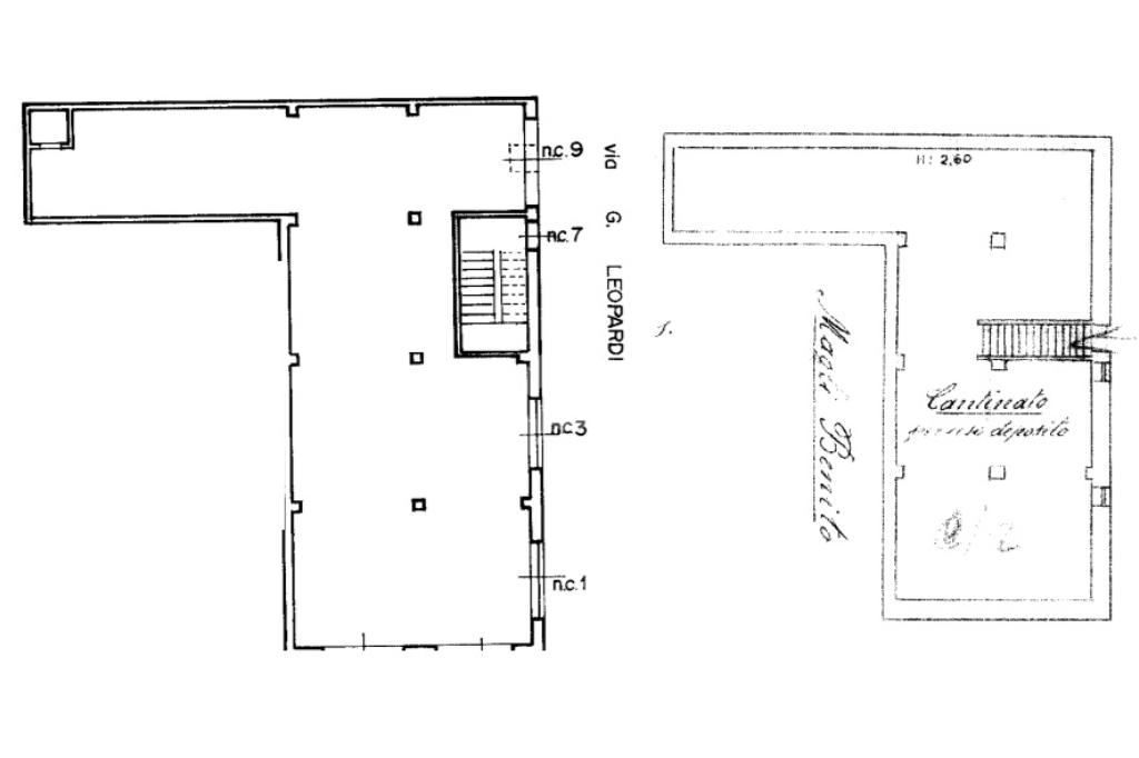
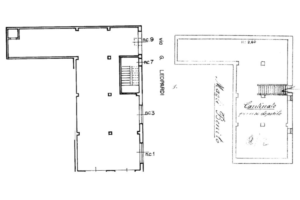
LOCALE COMMERCIALE VIA BARBARO FORLEO

Scopri un'opportunità unica nel cuore commerciale della citta'!

Proponiamo in vendita un ampio immobile di complessivi 437 mq, dislocato su due livelli.

Al piano strada, troverete 231 m² con ben due vetrine du via B. Forleo e due ad angolo, che garantiscono una visibilità eccezionale.

Il piano interrato aggiunge ulteriori 206 m², perfetti per magazzino o showroom, raggiungibili con ascensore per carico merci.

Attualmente adibito a supermercato, l'immobile si presta a diverse soluzioni commerciali grazie alla sua ampia metratura.

Un ulteriore vantaggio è rappresentato dal deposito situato al seminterrato, munito anche di montacarichi, ideale per lo stoccaggio di merci o materiali.

Questa opportunità è perfetta per chi desidera investire in un'attività commerciale in una zona ben servita e di passaggio.

La struttura solida e la disposizione degli spazi interni offrono la possibilità di personalizzare l'ambiente secondo le proprie esigenze.

Vieni a trovarci in ufficio, siamo in Viale Lilla,81 per maggiori informazioni e seguici sui nostri canali social.

Scaricate la nostra App GRATUITAMENTE sul Vostro Smartphone per restare aggiornati sulle Nostre proposte e visitate le nostre proposte su Francavilla Fontana.

Presso la nostra agenzia è possibile, su richiesta, grazie ai professionisti della società di mediazione creditizia del gruppo Kìron ricevere una consulenza ed accedere ad un'ampia gamma di prodotti creditizi e assicurativi.
La consulenza è gratuita

Mostra tutto

Nelle vicinanze

Trasporto pubblico Trasporto pubblico
Francavilla Fontana
Francavilla Fontana
1,1 Km
Ricariche auto elettriche Ricariche auto elettriche
Eneldrive Municipio
90 m
Eneldrive Stazione FS Francavilla Fontana
1,1 Km
Scuole Scuole
Scuola Elementare
210 m
primo istituto comprensivo Publio Virgilio Marone
350 m
3° Istituto Comprensivo - Scuola Elementare Peraro
570 m
Scuola Materna Via Distante
580 m
Liceo Scientifico Statale "Francesco Ribezzo"
710 m
Farmacia Farmacia
Farmacia del leone
420 m
Ospedali Ospedali
Pronto Soccorso Ospedale Francavilla Fontana
830 m
Ospedale Dario Camberlingo
860 m
Negozi Negozi
Sapori di Pane
1,3 Km
Bar Bar
Giba bar
340 m
Candita Tommaso
1,3 Km
Mostra tutto

Caratteristiche

Rif.:
61153427
Piano:
1 di 1 con ascensore (Piano terra)
Arredamento:
Assente
Condizionamento:
Autonomo
Ascensore:
Riscaldamento:
Autonomo
Mostra tutto
Prezzo Prezzo
€ 429.000
Rata mutuo Rata mutuo
€ 2.003 / mese
Spese annue Spese annue
€ 0
Proponi il tuo prezzoProponi il tuo prezzo
Immobile valutato con T·Valuta

Classe Energetica

G
G
G
G
G
G
G
G
G
EP globale non rinnovabile:
175.00 kW h/m² anno
EP globale rinnovabile:
175.00 kW h/m² anno
EP invernale del fabbricato:
EP estiva del fabbricato:
Anno di costruzione:
1960
Riscaldamento:
Autonomo
Tipo impianto:
Ad aria
Tipo alimentazione:
Aria

Prezzo ridotto di €1 (3%%)

Ti interessa visionare l'immobile?

Fissa un appuntamento  Fissa un appuntamento

Richiedi informazioni

Clicca su Leggi per aprire l'informativa
* Questi campi sono obbligatori

Calcola il tuo mutuo

Semplice e senza impegno
Anticipo

( % )
Mutuo

( % )

pochi semplici passi

inserisci i tuoi dati
Questionario completato
Grazie per aver richiesto un appuntamento senza impegno con un nostro Consulente del Credito e Assicurativo.

Hai inserito correttamente tutti i dati necessari e a breve riceverai una e-mail con un link da convalidare per inviare i tuoi dati.
Affiliato
Studio Francavilla Srl
Viale Lilla Vincenzo, 77 72021 Francavilla Fontana (BR)

Il nostro staff


  • Marco Lotti
    Affiliato

  • Desire Corvino
    Responsabile

  • Carmela Donatiello
    Collaboratrice

  • Marinunzia Nisi
    Collaboratrice

  • Gabriele Palumbo
    Collaboratore
Viale Lilla Vincenzo, 77 72021 Francavilla Fontana (BR)
Zona: Francavilla Fontana
Mostra su mappa
Orari: LUN 10.00/13.00 - 16.00/20.00 MAR - MER - GIO 09.00/13.00 - 16.00/20.00 VEN 09.00/13.00 - 16.00/18.00 SAB 09.00/13.00
Affiliato
Studio Francavilla Srl
Viale Lilla Vincenzo, 77 72021 Francavilla Fontana (BR)

2026 Tecnocasa Franchising S.p.A. - P. IVA 08365160152 - Via Monte Bianco 60/A 20089 Rozzano (MI). Ogni agenzia ha un proprio titolare ed è autonoma. Privacy policy | Policy utilizzo | Cookie policy