Casa indipendente in vendita

Francavilla Fontana, Via Cesare Battisti
€ 175.000
3 locali 3 locali
130 Mq 130 Mq
1 bagno 1 bagno

Casa indipendente in vendita

Francavilla Fontana, Via Cesare Battisti

Descrizione annuncio

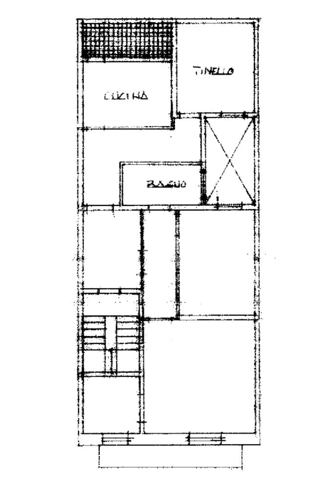
PRIMO PIANO INDIPENDENTE CON TERRAZZO

In zona richiestissima, in via Cesare Battisti, proponiamo la vendita di questa abitazione, posta al primo piano completamente indipendente.

L'ampia metratura, ben 130 mq, fa si che questa casa sia predisposta ad accogliere anche una famiglia numerosa.

Si accede attraverso un disimpegno che divide la zona giorno dalla zona notte.

La cucina che è il cuore della casa è ampia e abitabile ed è munita di un camino oltre che una stufa a pellet, inoltre dispone di un pozzo luce di pertinenza che da luminosità.

Le camere da letto sono tre, una matrimoniale e due camerette, tutte illuminate da finestre.

Un luminoso soggiorno si affaccia sul balcone ampio, che abbraccia tutto il prospetto dell'immobile.

Il bagno è totalmente nuovo ed è munito di un comodo box doccia.

Completa questa casa un ampio terrazzo esclusivo.

La casa dispone di camino, stufa a pellet, radiatori e condizionatori.

Ti aspettiamo in filiale per maggiori info e prenotare il tuo appuntamento.

Siamo in Viale Lilla,77 per maggiori informazioni e seguici sui nostri canali social.

Scaricate la nostra App GRATUITAMENTE sul Vostro Smartphone per restare aggiornati sulle Nostre proposte e visitate le nostre proposte su Francavilla Fontana

Mostra tutto

Nelle vicinanze

Trasporto pubblico Trasporto pubblico
Francavilla Fontana
Francavilla Fontana
940 m
Ricariche auto elettriche Ricariche auto elettriche
Eneldrive Municipio
300 m
Eneldrive Stazione FS Francavilla Fontana
880 m
Scuole Scuole
3° Istituto Comprensivo - Scuola Elementare Peraro
190 m
Liceo Scientifico Statale "Francesco Ribezzo"
350 m
Scuola Materna Via Distante
410 m
Istituto Commerciale "G. Calò"
420 m
Istituto Tecnico Industriale Statale "E. Fermi"
520 m
Farmacia Farmacia
Farmacia del leone
490 m
Ospedali Ospedali
Pronto Soccorso Ospedale Francavilla Fontana
1,2 Km
Ospedale Dario Camberlingo
1,2 Km
Negozi Negozi
Sapori di Pane
920 m
Bar Bar
Giba bar
380 m
Candita Tommaso
960 m
Mostra tutto

Caratteristiche

Rif.:
61114488
Piano:
1 di 1 (Piano alto)
Balconi:
1
Terrazzi:
1
Camere da letto:
3
Arredamento:
Assente
Mostra tutto
Prezzo Prezzo
€ 175.000
Rata mutuo Rata mutuo
€ 826 / mese
Spese annue Spese annue
€ 0
Proponi il tuo prezzoProponi il tuo prezzo

Classe Energetica

G
G
G
G
G
G
G
G
G
EP globale non rinnovabile:
175.00 kW h/m² anno
EP globale rinnovabile:
175.00 kW h/m² anno
EP invernale del fabbricato:
EP estiva del fabbricato:
Anno di costruzione:
1960
Riscaldamento:
Autonomo
Tipo impianto:
A radiatori
Tipo alimentazione:
Metano

Ti interessa visionare l'immobile?

Fissa un appuntamento  Fissa un appuntamento

Richiedi informazioni

Clicca su Leggi per aprire l'informativa
* Questi campi sono obbligatori

Calcola il tuo mutuo

Semplice e senza impegno
Anticipo

( % )
Mutuo

( % )

pochi semplici passi

inserisci i tuoi dati
Questionario completato
Grazie per aver richiesto un appuntamento senza impegno con un nostro Consulente del Credito e Assicurativo.

Hai inserito correttamente tutti i dati necessari e a breve riceverai una e-mail con un link da convalidare per inviare i tuoi dati.
Affiliato
Studio Francavilla Srl
Viale Lilla Vincenzo, 77 72021 Francavilla Fontana (BR)

Il nostro staff


  • Marco Lotti
    Affiliato

  • Desire Corvino
    Responsabile

  • Carmela Donatiello
    Collaboratrice

  • Teodora Meo
    Coordinatrice

  • Marinunzia Nisi
    Collaboratrice

  • Gabriele Palumbo
    Collaboratore
Viale Lilla Vincenzo, 77 72021 Francavilla Fontana (BR)
Zona: Francavilla Fontana
Mostra su mappa
Orari: LUN 10.00/13.00 - 16.00/20.00 MAR - MER - GIO 09.00/13.00 - 16.00/20.00 VEN 09.00/13.00 - 16.00/18.00 SAB 09.00/13.00
Affiliato
Studio Francavilla Srl
Viale Lilla Vincenzo, 77 72021 Francavilla Fontana (BR)

2025 Tecnocasa Franchising S.p.A. - P. IVA 08365160152 - Via Monte Bianco 60/A 20089 Rozzano (MI). Ogni agenzia ha un proprio titolare ed è autonoma. Privacy policy | Policy utilizzo | Cookie policy