Casa indipendente in vendita

Francavilla Fontana, Via Ettore Cimarosa
€ 192.000
Prezzo aggiornato
3 locali 3 locali
110 Mq 110 Mq
1 bagno 1 bagno

Casa indipendente in vendita

Francavilla Fontana, Via Ettore Cimarosa

Descrizione annuncio

INDIPENDENTE - PIANO RIALZATO

Nel quartiere Piazza Verdi, proponiamo in vendita questa abitazione di nuova costruzione, pronta a soddisfare le esigenze di chi cerca comfort e modernità.

Si prevede la realizzazione di 4 unità abitative, con ingressi indipendenti e possibilita' di acquistare box di pertinenza, di ampia metratura.

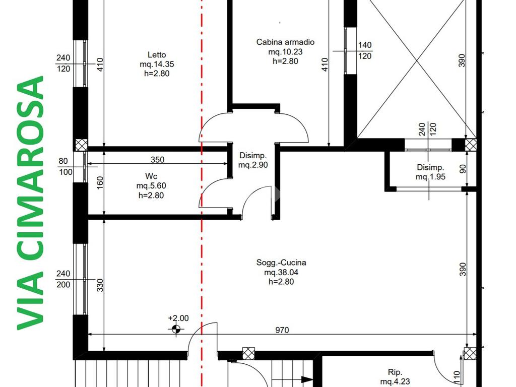
Con una superficie di circa 95 mq circa, l'immobile si distingue per l'ampia metratura e la disposizione funzionale degli spazi.

Situata al piano rialzato, l'immobile offre un ampio open space, ideale per momenti di convivialita' e grazie alla posizione ad angolo, avrai luminosità e un'atmosfera accogliente e un comodo ortale.

La zona notte da la possibilita' di ottenere due da letto, una camera doppia e una cameretta.

È inoltre possibile acquistare un box auto, aggiungendo praticità alla vostra nuova casa. Una soluzione abitativa che unisce modernità e funzionalità.

L' ingresso di questa abitazione sarà completamente indipendente.

Possibilita' di personalizzare gli spazi secondo le vostre esigenze.

- Il capitolato completo ed esclusivo vi garantirà personalizzazioni uniche e ricercate ed anche in questo caso l'obiettivo è stato quello di avere fornitori all'altezza di un progetto ambizioso.

Acquistare una casa in classe energetica A, vi assicura risparmio economico nella gestione della casa, sicurezza dell'investimento nel tempo, benessere abitativo e infine una scelta responsabile verso l'ambiente e le generazioni future.

- Predisposizione impianto fotovoltaico, allarme e condizionamento

- Sanitari in vetrochina bianca sospesi.

- Tapparelle elettriche.

PREDISPOSIZIONE IMPIANTO FOTOVOLTAICO

PREDISPOSIZIONE CONDIZIONATORI

Vieni a trovarci in Viale Vincenzo Lilla, 77 per maggiori info.

Mostra tutto

Nelle vicinanze

Trasporto pubblico Trasporto pubblico
Francavilla Fontana
Francavilla Fontana
490 m
Ricariche auto elettriche Ricariche auto elettriche
Eneldrive Stazione FS Francavilla Fontana
470 m
Eneldrive Municipio
1,0 Km
Scuole Scuole
Secondo Istituto Comprensivo "M. Montessori"
300 m
Secondo Istituto Comprensivo plesso "G. Calò"
350 m
I.I.S.S. "Vincenzo Lilla" - Sede Amministrativa - Liceo Classico
450 m
Secondo Istituto Comprensivo plesso di scuola dell'infanzia "G. Di Summa"
510 m
Istituto Tecnico Industriale Statale "E. Fermi"
750 m
Farmacia Farmacia
Farmacia del leone
590 m
Ospedali Ospedali
Pronto Soccorso Ospedale Francavilla Fontana
1,7 Km
Ospedale Dario Camberlingo
1,7 Km
Negozi Negozi
Sapori di Pane
1,1 Km
Bar Bar
Giba bar
690 m
Candita Tommaso
1,2 Km
Mostra tutto

Caratteristiche

Rif.:
61121264
Piano:
1 di 1 (Piano rialzato)
Camere da letto:
2
Arredamento:
Assente
Condizionamento:
Autonomo
Ascensore:
No
Mostra tutto
Prezzo Prezzo
€ 192.000
Rata mutuo Rata mutuo
€ 911 / mese
Spese annue Spese annue
€ 0
Proponi il tuo prezzoProponi il tuo prezzo

Classe Energetica

A1
A1
A1
A1
A1
A1
A1
A1
A1
EP invernale del fabbricato:
EP estiva del fabbricato:
Anno di costruzione:
2025
Riscaldamento:
Autonomo
Tipo impianto:
A radiatori
Tipo alimentazione:
Metano

Prezzo ridotto di €1 (4%%)

Ti interessa visionare l'immobile?

Fissa un appuntamento  Fissa un appuntamento

Richiedi informazioni

Clicca su Leggi per aprire l'informativa
* Questi campi sono obbligatori

Calcola il tuo mutuo

Semplice e senza impegno
Anticipo

( % )
Mutuo

( % )

pochi semplici passi

inserisci i tuoi dati
Questionario completato
Grazie per aver richiesto un appuntamento senza impegno con un nostro Consulente del Credito e Assicurativo.

Hai inserito correttamente tutti i dati necessari e a breve riceverai una e-mail con un link da convalidare per inviare i tuoi dati.
Affiliato
Studio Francavilla Srl
Viale Lilla Vincenzo, 77 72021 Francavilla Fontana (BR)

Il nostro staff


  • Marco Lotti
    Affiliato

  • Desire Corvino
    Responsabile

  • Carmela Donatiello
    Collaboratrice

  • Marinunzia Nisi
    Collaboratrice

  • Gabriele Palumbo
    Collaboratore
Viale Lilla Vincenzo, 77 72021 Francavilla Fontana (BR)
Zona: Francavilla Fontana
Mostra su mappa
Orari: LUN 10.00/13.00 - 16.00/20.00 MAR - MER - GIO 09.00/13.00 - 16.00/20.00 VEN 09.00/13.00 - 16.00/18.00 SAB 09.00/13.00
Affiliato
Studio Francavilla Srl
Viale Lilla Vincenzo, 77 72021 Francavilla Fontana (BR)

2026 Tecnocasa Franchising S.p.A. - P. IVA 08365160152 - Via Monte Bianco 60/A 20089 Rozzano (MI). Ogni agenzia ha un proprio titolare ed è autonoma. Privacy policy | Policy utilizzo | Cookie policy