Casa indipendente in vendita

Francavilla Fontana, Via M. Imperiali
€ 70.000
3 locali 3 locali
94 Mq 94 Mq
1 bagno 1 bagno

Casa indipendente in vendita

Francavilla Fontana, Via M. Imperiali

Descrizione annuncio

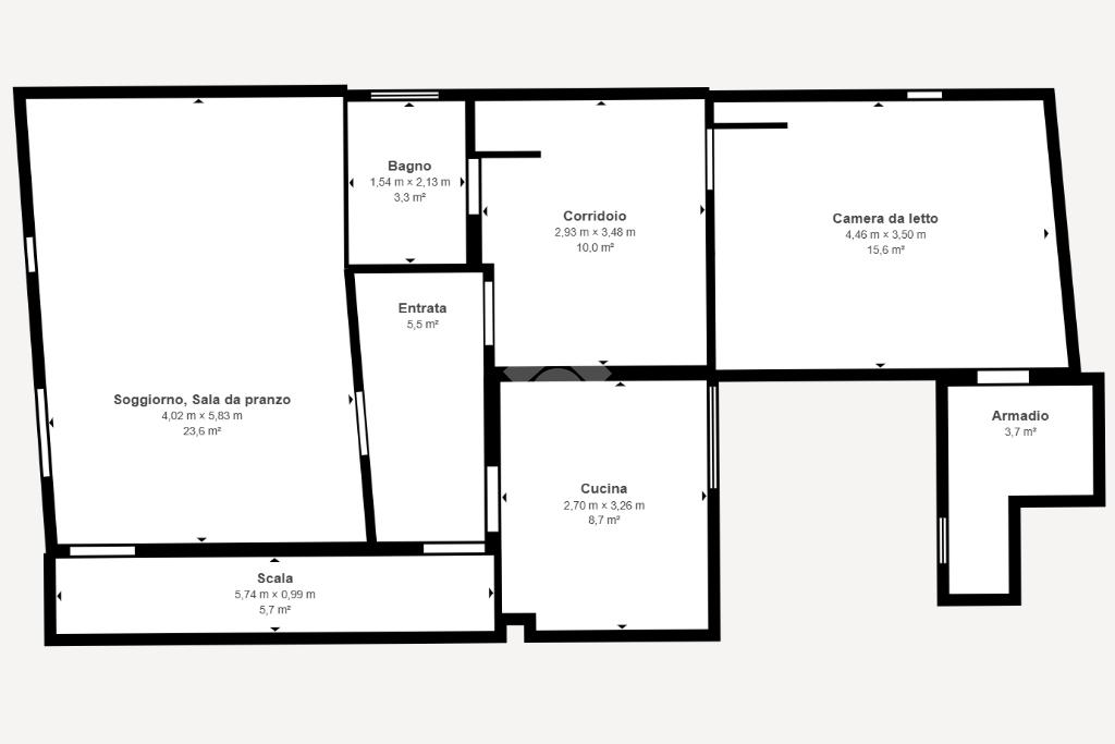
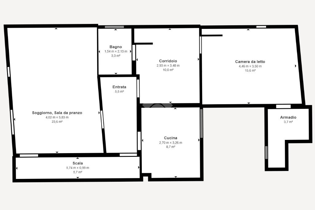
Luminoso Primo Piano Indipendente con Affaccio su Via Imperiali

Situata in una posizione strategica a pochissimi passi da Via Roma, questa abitazione indipendente al primo piano si distingue per la sua straordinaria luminosità, grazie a un'esposizione angolare e a un balcone perimetrale che circonda la struttura.

Il cuore della casa è rappresentato da un'ampia sala da pranzo impreziosita da due grandi porte-finestre che inondano l'ambiente di luce naturale e offrono un accesso diretto al balcone con affaccio su Via Imperiali.

Accanto alla sala troviamo una cucina abitabile, mentre un pratico disimpegno conduce alla zona notte. Qui si sviluppa una spaziosa camera da letto matrimoniale, dotata di un vano dedicato a cabina armadio che, a seconda delle necessità, può essere trasformato in un esclusivo secondo bagno in camera.

L'abitazione è completata da un comodo bagno e da una zona lavanderia che fa da passaggio verso una splendida terrazza all'aperto, ideale per godersi momenti di relax in totale privacy.

Grazie alla comoda metratura e alla disposizione degli spazi, l'immobile si presta a una ristrutturazione che permetterebbe di ricavare facilmente una seconda cameretta, trasformandolo in un trilocale moderno e funzionale.

Vieni a trovarci in filiale, siamo in Viale Lilla, 81 per maggiori informazioni e seguici sui nostri canali social.Scaricate la nostra App GRATUITAMENTE sul Vostro Smartphone per restare aggiornati sulle Nostre proposte e visitate le nostre proposte su Francavilla Fontana.

Mostra tutto

Nelle vicinanze

Trasporto pubblico Trasporto pubblico
Francavilla Fontana
Francavilla Fontana
560 m
Ricariche auto elettriche Ricariche auto elettriche
Eneldrive Stazione FS Francavilla Fontana
490 m
Eneldrive Municipio
570 m
Scuole Scuole
I.I.S.S. "Vincenzo Lilla" - Sede Amministrativa - Liceo Classico
210 m
Secondo Istituto Comprensivo plesso "G. Calò"
270 m
Istituto Tecnico Industriale Statale "E. Fermi"
280 m
Secondo Istituto Comprensivo "M. Montessori"
310 m
Secondo Istituto Comprensivo plesso di scuola dell'infanzia "G. Di Summa"
320 m
Farmacia Farmacia
Farmacia del leone
330 m
Ospedali Ospedali
Pronto Soccorso Ospedale Francavilla Fontana
1,4 Km
Ospedale Dario Camberlingo
1,4 Km
Negozi Negozi
Sapori di Pane
750 m
Bar Bar
Giba bar
300 m
Candita Tommaso
810 m
Mostra tutto

Caratteristiche

Rif.:
61197183
Piano:
1 di 1 (Piano alto)
Balconi:
2
Terrazzi:
1
Camere da letto:
1
Arredamento:
Assente
Mostra tutto
Prezzo Prezzo
€ 70.000
Rata mutuo Rata mutuo
€ 332 / mese
Spese annue Spese annue
€ 0
Proponi il tuo prezzoProponi il tuo prezzo

Classe Energetica

G
G
G
G
G
G
G
G
G
EP globale non rinnovabile:
175.00 kW h/m² anno
EP globale rinnovabile:
175.00 kW h/m² anno
EP invernale del fabbricato:
EP estiva del fabbricato:
Anno di costruzione:
1968
Riscaldamento:
Autonomo
Tipo impianto:
A radiatori
Tipo alimentazione:
Metano

Ti interessa visionare l'immobile?

Fissa un appuntamento  Fissa un appuntamento

Richiedi informazioni

Clicca su Leggi per aprire l'informativa
* Questi campi sono obbligatori

Calcola il tuo mutuo

Semplice e senza impegno
Anticipo

( % )
Mutuo

( % )

pochi semplici passi

inserisci i tuoi dati
Questionario completato
Grazie per aver richiesto un appuntamento senza impegno con un nostro Consulente del Credito e Assicurativo.

Hai inserito correttamente tutti i dati necessari e a breve riceverai una e-mail con un link da convalidare per inviare i tuoi dati.
Affiliato
Studio Francavilla Srl
Viale Lilla Vincenzo, 77 72021 Francavilla Fontana (BR)

Il nostro staff


  • Marco Lotti
    Affiliato

  • Desire Corvino
    Responsabile

  • Carmela Donatiello
    Collaboratrice

  • Marinunzia Nisi
    Collaboratrice

  • Gabriele Palumbo
    Collaboratore
Viale Lilla Vincenzo, 77 72021 Francavilla Fontana (BR)
Zona: Francavilla Fontana
Mostra su mappa
Orari: LUN 10.00/13.00 - 16.00/20.00 MAR - MER - GIO 09.00/13.00 - 16.00/20.00 VEN 09.00/13.00 - 16.00/18.00 SAB 09.00/13.00
Affiliato
Studio Francavilla Srl
Viale Lilla Vincenzo, 77 72021 Francavilla Fontana (BR)

2026 Tecnocasa Franchising S.p.A. - P. IVA 08365160152 - Via Monte Bianco 60/A 20089 Rozzano (MI). Ogni agenzia ha un proprio titolare ed è autonoma. Privacy policy | Policy utilizzo | Cookie policy