Villa singola in vendita

Francavilla Fontana, Via Per San Marzano
€ 154.000
5 locali 5 locali
104 Mq 104 Mq
1 bagno 1 bagno

Villa singola in vendita

Francavilla Fontana, Via Per San Marzano

Descrizione annuncio

VILLA GIA' ABITABILE

CLICCA SU VIDEO 360° E LO VISITI VIRTUALMENTE RISPARMIANDO TEMPO!!!

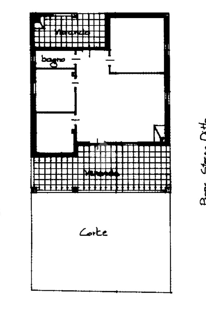
In contesto residenziale e abitato, accedendo da una strada privata, ti proponiamo una villa di circa 104 mq adatta a te che cerchi la tua prossima casa immersa nel verde.

La villetta è completamente recintata e dispone di un piazzale cementato che ti consentirà di parcheggiare le tue auto.

L'abitazione è facilmente raggiungibile da strada asfaltata, dalla provinciale che collega Francavilla a San Marzano, non necessita di interventi di ristrutturazione ed è già abitabile, potrebbe essere funzionale per goderla anche durante la stagione invernale.

Una grande veranda, anticipa questa soluzione.

All'entrata ci accoglie una luminosa e ampia sala pranzo munita di camino. La zona giorno continua con un comodo cucinotto che ha accesso sulla veranda sul retro.

La zona notte è composta da tre camere da letto, una matrimoniale e due camerette.

Il terreno che circonda l'immobile è di circa 5.620 metri quadri piantumato con alberi da frutto di vario genere, dove goderti la TUA villa in relax.

All'esterno troverai una zona forno e barbecue e una stanza adibita a deposito.

- Bagno

- Pozzo artesiano

- Camino

- Forno

Situato in una zona tranquilla, questa soluzione risulta facilmente raggiungibile da Francavilla Fontana e non dista molto dal litorale brindisino ( distante circa 25 km dalla bellissima riserva naturare di Torre Guaceto) e dalla costa Jonica (circa 30 minuti dalle spiagge di Porto Cesareo).
L'aeroporto di Brindisi dista circa 28 km mentre la stazione ferroviaria circa 9 km.

Vieni a trovarci in ufficio, siamo in Viale Lilla,81 per maggiori informazioni e seguici sui nostri canali social.

Scaricate la nostra App GRATUITAMENTE sul Vostro Smartphone per restare aggiornati sulle Nostre proposte e visitate le nostre proposte su Francavilla Fontana.

Presso la nostra agenzia è possibile, su richiesta, grazie ai professionisti della società di mediazione creditizia del gruppo Kìron ricevere una consulenza ed accedere ad un'ampia gamma di prodotti creditizi e assicurativi.
La consulenza è gratuita

Mostra tutto

Caratteristiche

Rif.:
61147331
Piano:
1 di 1 (Piano terra)
Terrazzi:
1
Camere da letto:
3
Arredamento:
Assente
Condizionamento:
Assente
Mostra tutto
Prezzo Prezzo
€ 154.000
Rata mutuo Rata mutuo
€ 727 / mese
Spese annue Spese annue
€ 0
Proponi il tuo prezzoProponi il tuo prezzo
Immobile valutato con T·Valuta

Classe Energetica

G
G
G
G
G
G
G
G
G
EP globale non rinnovabile:
175.00 kW h/m² anno
EP globale rinnovabile:
175.00 kW h/m² anno
EP invernale del fabbricato:
EP estiva del fabbricato:
Anno di costruzione:
1990
Riscaldamento:
Assente

Ti interessa visionare l'immobile?

Fissa un appuntamento  Fissa un appuntamento

Richiedi informazioni

Clicca su Leggi per aprire l'informativa
* Questi campi sono obbligatori

Calcola il tuo mutuo

Semplice e senza impegno
Anticipo

( % )
Mutuo

( % )

pochi semplici passi

inserisci i tuoi dati
Questionario completato
Grazie per aver richiesto un appuntamento senza impegno con un nostro Consulente del Credito e Assicurativo.

Hai inserito correttamente tutti i dati necessari e a breve riceverai una e-mail con un link da convalidare per inviare i tuoi dati.
Affiliato
Studio Francavilla Srl
Viale Lilla Vincenzo, 77 72021 Francavilla Fontana (BR)

Il nostro staff


  • Marco Lotti
    Affiliato

  • Desire Corvino
    Responsabile

  • Carmela Donatiello
    Collaboratrice

  • Teodora Meo
    Coordinatrice

  • Marinunzia Nisi
    Collaboratrice

  • Gabriele Palumbo
    Collaboratore
Viale Lilla Vincenzo, 77 72021 Francavilla Fontana (BR)
Zona: Francavilla Fontana
Mostra su mappa
Orari: LUN 10.00/13.00 - 16.00/20.00 MAR - MER - GIO 09.00/13.00 - 16.00/20.00 VEN 09.00/13.00 - 16.00/18.00 SAB 09.00/13.00
Affiliato
Studio Francavilla Srl
Viale Lilla Vincenzo, 77 72021 Francavilla Fontana (BR)

2025 Tecnocasa Franchising S.p.A. - P. IVA 08365160152 - Via Monte Bianco 60/A 20089 Rozzano (MI). Ogni agenzia ha un proprio titolare ed è autonoma. Privacy policy | Policy utilizzo | Cookie policy