Villa singola in vendita

Francavilla Fontana, Contrada La Franca
€ 148.000
4 locali 4 locali
117 Mq 117 Mq
2 bagni 2 bagni

Villa singola in vendita

Francavilla Fontana, Contrada La Franca

Descrizione annuncio

A 500 mt dalla citta'...

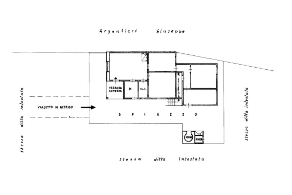
A pochi minuti dal cuore del paese, dove la comodità dei servizi incontra la quiete della campagna, sorge questa ampia villa, che sembra fatta apposta per chi ama vivere gli spazi in totale libertà.

L’ingresso è caratterizzato da un cancello privato, un perfetto connubio tra accoglienza e sicurezza, ideale per chi ama vivere in contesti riservati ma facilmente accessibili.

Questa proprietà si distingue per l’accoglienza e la generosità degli spazi.

Superato l'ingresso dal cancello privato, si viene accolti da un comodo piazzale che conduce alla splendida veranda che incornicia la villa.

Questo spazio coperto offre angoli di relax ideali per pranzi all'aperto, zone lounge o semplicemente per godersi la brezza in totale privacy con una meravigliosa vista sul giardino.

L'ingresso principale conduce nel cuore della casa: una cucina distinta e una sala da pranzo dominata da un grande camino, l’elemento perfetto per riscaldare l'atmosfera nelle serate invernali. Questa zona ospita anche la prima camera da letto e un bagno principale.

La zona notte è riservata con tre camere da letto e un utile ripostiglio.

Proseguendo verso l'esterno che la proprietà rivela tutta la sua bellezza.

Il terreno è comodo da gestire, di circa 1200 mq, contraddistinto dal profumo degli alberi di agrumi e il verde della natura. Dotato di pozzo.

Qui, la zona barbecue è già pronta per diventare il teatro delle tue serate estive.

E se cerchi un punto di vista diverso, le scale esterne ti portano su un grande terrazzo diviso in due aree, dove potrai goderti il sole in totale privacy o ammirare il cielo stellato lontano dai rumori della città.

Vieni a trovarci in filiale, siamo in Viale Lilla, 81 per maggiori informazioni e seguici sui nostri canali social.

Scaricate la nostra App GRATUITAMENTE sul Vostro Smartphone per restare aggiornati sulle Nostre proposte e visitate le nostre proposte su Francavilla Fontana.

Mostra tutto

Nelle vicinanze

Trasporto pubblico Trasporto pubblico
Francavilla Fontana
Francavilla Fontana
1,9 Km
Ricariche auto elettriche Ricariche auto elettriche
Eneldrive Municipio
1,3 Km
Eneldrive Stazione FS Francavilla Fontana
1,9 Km
Scuole Scuole
3° istituto comprensivo - scuola primaria
640 m
Scuola Materna Via Distante
760 m
3° Istituto Comprensivo - Scuola Elementare Peraro
1,2 Km
Istituto Commerciale "G. Calò"
1,2 Km
Liceo Scientifico Statale "Francesco Ribezzo"
1,2 Km
Farmacia Farmacia
Farmacia del leone
1,6 Km
Ospedali Ospedali
Pronto Soccorso Ospedale Francavilla Fontana
1,7 Km
Ospedale Dario Camberlingo
1,8 Km
Negozi Negozi
Sapori di Pane
1,6 Km
Bar Bar
Giba bar
1,5 Km
Candita Tommaso
1,5 Km
Mostra tutto

Caratteristiche

Rif.:
61169522
Piano:
Terra
Terrazzi:
2
Camere da letto:
2
Arredamento:
Assente
Condizionamento:
Assente
Mostra tutto
Prezzo Prezzo
€ 148.000
Rata mutuo Rata mutuo
€ 702 / mese
Spese annue Spese annue
€ 0
Proponi il tuo prezzoProponi il tuo prezzo

Classe Energetica

G
G
G
G
G
G
G
G
G
EP globale non rinnovabile:
175.00 kW h/m² anno
EP globale rinnovabile:
175.00 kW h/m² anno
EP invernale del fabbricato:
EP estiva del fabbricato:
Anno di costruzione:
1992
Riscaldamento:
Assente

Ti interessa visionare l'immobile?

Fissa un appuntamento  Fissa un appuntamento

Richiedi informazioni

Clicca su Leggi per aprire l'informativa
* Questi campi sono obbligatori

Calcola il tuo mutuo

Semplice e senza impegno
Anticipo

( % )
Mutuo

( % )

pochi semplici passi

inserisci i tuoi dati
Questionario completato
Grazie per aver richiesto un appuntamento senza impegno con un nostro Consulente del Credito e Assicurativo.

Hai inserito correttamente tutti i dati necessari e a breve riceverai una e-mail con un link da convalidare per inviare i tuoi dati.
Affiliato
Studio Francavilla Srl
Viale Lilla Vincenzo, 77 72021 Francavilla Fontana (BR)

Il nostro staff


  • Marco Lotti
    Affiliato

  • Desire Corvino
    Responsabile

  • Carmela Donatiello
    Collaboratrice

  • Marinunzia Nisi
    Collaboratrice

  • Gabriele Palumbo
    Collaboratore
Viale Lilla Vincenzo, 77 72021 Francavilla Fontana (BR)
Zona: Francavilla Fontana
Mostra su mappa
Orari: LUN 10.00/13.00 - 16.00/20.00 MAR - MER - GIO 09.00/13.00 - 16.00/20.00 VEN 09.00/13.00 - 16.00/18.00 SAB 09.00/13.00
Affiliato
Studio Francavilla Srl
Viale Lilla Vincenzo, 77 72021 Francavilla Fontana (BR)

2026 Tecnocasa Franchising S.p.A. - P. IVA 08365160152 - Via Monte Bianco 60/A 20089 Rozzano (MI). Ogni agenzia ha un proprio titolare ed è autonoma. Privacy policy | Policy utilizzo | Cookie policy