Villa singola in vendita

Latiano, Via Padre Bernardo
€ 112.000
4 locali 4 locali
140 Mq 140 Mq
2 bagni 2 bagni

Villa singola in vendita

Latiano, Via Padre Bernardo

Descrizione annuncio

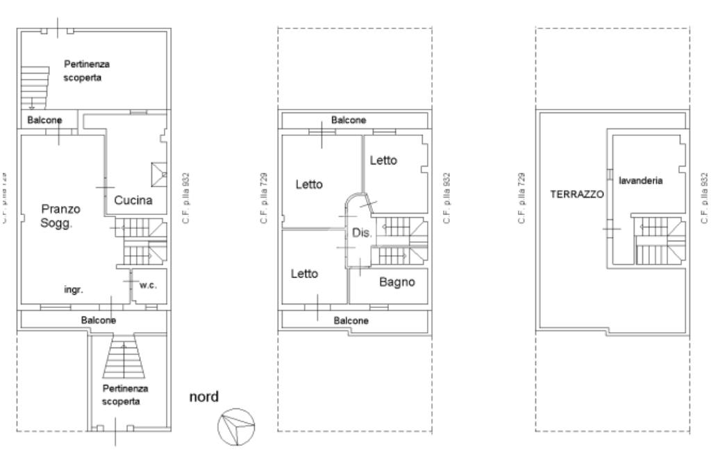
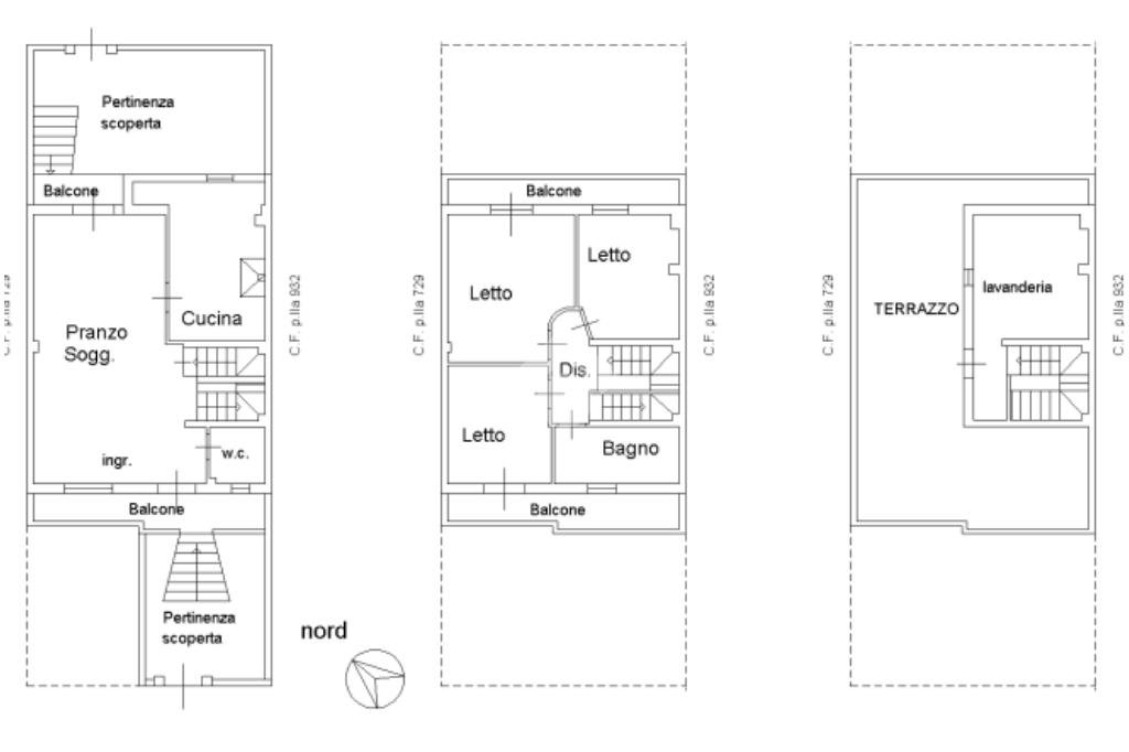
ZONA PERIFERICA - CASA INDIPENDENTE

Situata in una zona residenziale di recente sviluppo, proponiamo in vendita questa casa completamente indipendente sviluppata su più piani, pronta per essere rifinita secondo le tue esigenze.

Varcando la soglia, si viene accolti da un grande e luminoso soggiorno, con doppio affaccio che crea un dialogo costante con l'esterno, aprendosi sul retro direttamente verso il proprio spazio privato.

La zona giorno è completata da una cucina spaziosa, resa accogliente dalla presenza di un camino, e da un primo bagno funzionale.

Salendo le scale, si presenta la zona notte, con due camere da letto ampie e spaziose , entrambe con affaccio su balconi differenti, ed una terza stanza versatile perfetta come studio o cameretta.

Completa questo piano il secondo bagno della proprietà. Da qui la scala conduce a una pratica zona lavanderia che si apre su un terrazzo generoso, un vero e proprio spazio da cui godersi il panorama.

A completare questa casa è il garage dalle ampie metrature, che non offre solo il posto auto, ma include anche due stanze utilissime come ripostigli e un ulteriore bagno di servizio.

Il garage dispone di spazio di manovra e massima comodità grazie al collegamento interno diretto con la zona giorno, oltre all'accesso indipendente dall'esterno.

Vieni a trovarci in filiale, siamo in Viale Lilla, 81, Francavilla Fontana, per maggiori informazioni e seguici sui nostri canali social. Scaricate la nostra App GRATUITAMENTE sul Vostro Smartphone per restare aggiornati sulle Nostre proposte e visitate le nostre proposte su Francavilla Fontana.

Mostra tutto

Nelle vicinanze

Trasporto pubblico Trasporto pubblico
stazione di Latiano
stazione di Latiano
1,4 Km
Scuole Scuole
Scuola Media Croce-Monasterio
290 m
Scuola Elementare Bartolo Longo
490 m
Scuola Elementare Filippo Errico
1,4 Km
Liceo Scienze Umane e Ling. "F.Ribezzo"
1,5 Km
Scuole
1,5 Km
Farmacia Farmacia
farmacia Rigliano
510 m
farmacia Colazzo
1,0 Km
Farmacia Altavilla
1,1 Km
Farmacia Bartolo Longo
1,2 Km
farmacia De Franciscis
1,3 Km
Ospedali Ospedali
guardia medica
1,5 Km
Supermercati Supermercati
Gruppo PAM
650 m
EuroSpin
760 m
Negozi Negozi
Panificio San Giuseppe
1,2 Km
Bar Bar
Viavai & Coffee S.r.l.
630 m
Bar degli Angeli
700 m
Caffè Manhattan
1,1 Km
Ristoranti Ristoranti
Luppolo e farina
1,2 Km
Ristoranti
1,2 Km
Daburghi
1,2 Km
Mostra tutto

Caratteristiche

Rif.:
61188587
Piano:
1 di 1 (Piano su più livelli)
Box:
1
Posti auto:
3
Balconi:
3
Terrazzi:
1
Mostra tutto
Prezzo Prezzo
€ 112.000
Rata mutuo Rata mutuo
€ 532 / mese
Spese annue Spese annue
€ 0
Proponi il tuo prezzoProponi il tuo prezzo

Classe Energetica

G
G
G
G
G
G
G
G
G
EP globale non rinnovabile:
175.00 kW h/m² anno
EP globale rinnovabile:
175.00 kW h/m² anno
EP invernale del fabbricato:
EP estiva del fabbricato:
Anno di costruzione:
2000
Riscaldamento:
Autonomo
Tipo impianto:
A radiatori
Tipo alimentazione:
Metano

Ti interessa visionare l'immobile?

Fissa un appuntamento  Fissa un appuntamento

Richiedi informazioni

Clicca su Leggi per aprire l'informativa
* Questi campi sono obbligatori

Calcola il tuo mutuo

Semplice e senza impegno
Anticipo

( % )
Mutuo

( % )

pochi semplici passi

inserisci i tuoi dati
Questionario completato
Grazie per aver richiesto un appuntamento senza impegno con un nostro Consulente del Credito e Assicurativo.

Hai inserito correttamente tutti i dati necessari e a breve riceverai una e-mail con un link da convalidare per inviare i tuoi dati.
Affiliato
Studio Francavilla Srl
Viale Lilla Vincenzo, 77 72021 Francavilla Fontana (BR)

Il nostro staff


  • Marco Lotti
    Affiliato

  • Desire Corvino
    Responsabile

  • Carmela Donatiello
    Collaboratrice

  • Marinunzia Nisi
    Collaboratrice

  • Gabriele Palumbo
    Collaboratore
Viale Lilla Vincenzo, 77 72021 Francavilla Fontana (BR)
Zona: Francavilla Fontana
Mostra su mappa
Orari: LUN 10.00/13.00 - 16.00/20.00 MAR - MER - GIO 09.00/13.00 - 16.00/20.00 VEN 09.00/13.00 - 16.00/18.00 SAB 09.00/13.00
Affiliato
Studio Francavilla Srl
Viale Lilla Vincenzo, 77 72021 Francavilla Fontana (BR)

2026 Tecnocasa Franchising S.p.A. - P. IVA 08365160152 - Via Monte Bianco 60/A 20089 Rozzano (MI). Ogni agenzia ha un proprio titolare ed è autonoma. Privacy policy | Policy utilizzo | Cookie policy