Villa singola in vendita

Maruggio, Villa indipendente torre ovo - Torre Ovo
€ 103.000
Prezzo aggiornato
3 locali 3 locali
90 Mq 90 Mq
2 bagni 2 bagni

Villa singola in vendita

Maruggio, Villa indipendente torre ovo - Torre Ovo

Descrizione annuncio

Nel cuore della località di Torre Ovo, presentiamo una villa che offre un'opportunità unica per chi cerca una residenza vicino al mare.

Situata a soli 800 mt dalla spiaggia, questa proprietà è in fase di ristrutturazione, iniziata nel 2020, garantendo comfort e modernità.

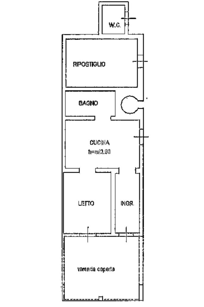
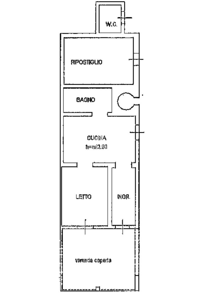
La villa si sviluppa interamente al piano terra e comprende tre locali principali, tra cui due camere da letto, la matrimoniale con cabina armadio, e bagno rivestito in pietra.

La proprietà dispone di un ampio giardino di circa 3800 e offre la comodità di posteggiare diverse auto, servito da TRE POZZI SORGIVI.

I comfort in questa villa, assicurano un ambiente piacevole durante tutto l'anno.

Gli infissi sono nuovi e dotati di inferriate e zanzariere. Presente TERMOCAMINO VULCANO 3000 a legna.

Impianto termosifoni;

Cappotto interno ed esterno;

Pavimento stile legno in gres porcellanato;

Scavo piscina eseguito;

Vespaio per eventuale umidità pavimento;

Bagno esterno;

Locale in legno di circa 40 metri come deposito da restaurare

Gli impianti idrici sono stati portati sino al terrazzo.

Questa villetta rappresenta una soluzione ideale per chi desidera vivere in una zona tranquilla, a breve distanza dalle splendide spiagge di Torre Ovo.

Mostra tutto

Nelle vicinanze

Bar Bar
Yannis
1,3 Km
Ristoranti Ristoranti
Pizzeria Due Palme
900 m
Piri Piri
1,3 Km
Elisir Beach
1,5 Km
posto 9
1,9 Km
Mostra tutto

Caratteristiche

Rif.:
61112785
Piano:
Terra di 1
Totale piani:
1
Posti auto:
5
Balconi:
1
Terrazzi:
1
Mostra tutto
Prezzo Prezzo
€ 103.000
Rata mutuo Rata mutuo
€ 481 / mese
Spese annue Spese annue
€ 0
Proponi il tuo prezzoProponi il tuo prezzo

Classe Energetica

G
G
G
G
G
G
G
G
G
Anno di costruzione:
1970
Riscaldamento:
Autonomo
Tipo impianto:
A radiatori
Tipo alimentazione:
Metano

Prezzo ridotto di €1 (14%%)

Ti interessa visionare l'immobile?

Fissa un appuntamento  Fissa un appuntamento

Richiedi informazioni

Clicca su Leggi per aprire l'informativa
* Questi campi sono obbligatori

Calcola il tuo mutuo

Semplice e senza impegno
Anticipo

( % )
Mutuo

( % )

pochi semplici passi

inserisci i tuoi dati
Questionario completato
Grazie per aver richiesto un appuntamento senza impegno con un nostro Consulente del Credito e Assicurativo.

Hai inserito correttamente tutti i dati necessari e a breve riceverai una e-mail con un link da convalidare per inviare i tuoi dati.
Affiliato
Studio Francavilla Srl
Viale Lilla Vincenzo, 77 72021 Francavilla Fontana (BR)

Il nostro staff


  • Marco Lotti
    Affiliato

  • Desire Corvino
    Responsabile

  • Carmela Donatiello
    Collaboratrice

  • Marinunzia Nisi
    Collaboratrice

  • Gabriele Palumbo
    Collaboratore
Viale Lilla Vincenzo, 77 72021 Francavilla Fontana (BR)
Zona: Francavilla Fontana
Mostra su mappa
Orari: LUN 10.00/13.00 - 16.00/20.00 MAR - MER - GIO 09.00/13.00 - 16.00/20.00 VEN 09.00/13.00 - 16.00/18.00 SAB 09.00/13.00
Affiliato
Studio Francavilla Srl
Viale Lilla Vincenzo, 77 72021 Francavilla Fontana (BR)

2026 Tecnocasa Franchising S.p.A. - P. IVA 08365160152 - Via Monte Bianco 60/A 20089 Rozzano (MI). Ogni agenzia ha un proprio titolare ed è autonoma. Privacy policy | Policy utilizzo | Cookie policy