Multilocale in affitto

Oria, Via Torre
Informazioni in agenzia
4 locali 4 locali
500 Mq 500 Mq
2 bagni 2 bagni

Multilocale in affitto

Oria, Via Torre

Descrizione annuncio

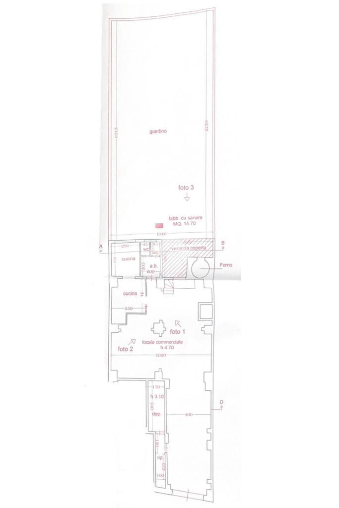
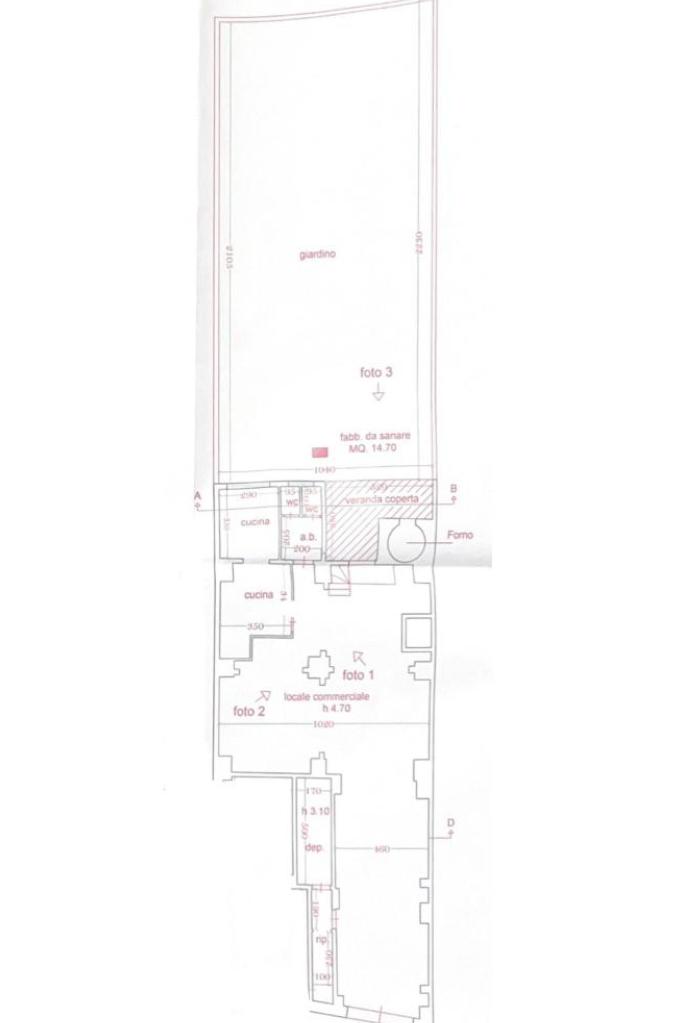
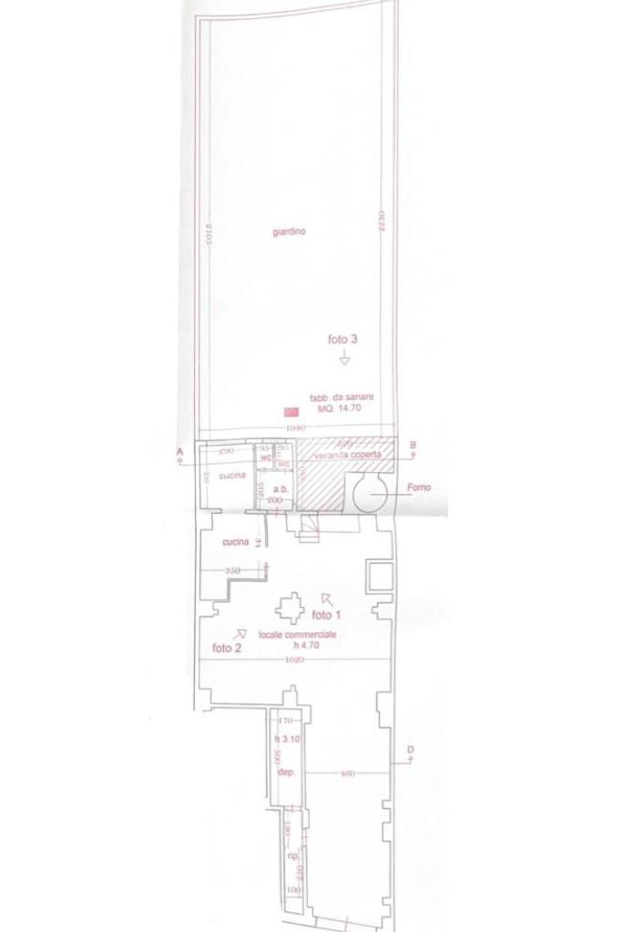
Locale commerciale con spazio esterno attrezzato

Proponiamo un locale commerciale di 250 mq interni, ex ristorante “Il Castellano”, già predisposto per attività di ristorazione o intrattenimento.

CARATTERISTICHE INTERNE

Soffitti con volte a stella a faccia vista;

Ampia sala con posti a sedere interni;

Cucina attrezzata;

Doppi servizi per la clientela;

Area riservata al personale con bagno, spogliatoio e deposito.

CARATTERISTICHE ESTERNE

Accesso tramite scala a un piazzale pavimentato di circa 250 mq;

Zona barbecue attrezzata;

Area verandata con forno a legna, ideale per pizzeria o eventi all’aperto.

Ideale per chi cerca un’attività già strutturata e funzionale;
Ottima visibilità e posizione di passaggio;
Adatto a ristoranti, bracerie, pizzerie o location per eventi.

Superficie commerciale: 500 mq (250 mq interni + 250 mq esterni)
Categoria catastale: C/1 – Negozio

Contattaci per maggiori informazioni o per organizzare una visita.

Mostra tutto

Nelle vicinanze

Trasporto pubblico Trasporto pubblico
stazione di Oria
stazione di Oria
1,1 Km
Trasporto pubblico
280 m
Scuole Scuole
Liceo Scientifico Vincenzo Lilla
600 m
Farmacia Farmacia
Manisco Capozza Dr. Silvia
190 m
Antonecchi Dr. Silvana Olga
240 m
Dottoressa Musto
250 m
Pistone Dr. Leonardo
310 m
Farmacia Santi Medici
600 m
Supermercati Supermercati
Di Meglio
800 m
Eurospin
1,5 Km
Negozi Negozi
Euro Quality Food
230 m
Bar Bar
Kenya
160 m
Ristoranti Ristoranti
Intra Moenia
190 m
Fuori Porta
220 m
Ristoranti
810 m
Mostra tutto

Caratteristiche

Rif.:
61163788
Piano:
1 di 1 (Piano terra con giardino)
Terrazzi:
1
Arredamento:
Assente
Condizionamento:
Autonomo
Ascensore:
No
Mostra tutto
Prezzo Prezzo
Informazioni in agenzia
Spese annue Spese annue
€ 0

Classe Energetica

D
D
D
D
D
D
D
D
D
EP globale non rinnovabile:
175.00 kW h/m² anno
EP globale rinnovabile:
175.00 kW h/m² anno
EP invernale del fabbricato:
EP estiva del fabbricato:
Anno di costruzione:
1967
Riscaldamento:
Autonomo
Tipo impianto:
Ad aria
Tipo alimentazione:
Aria

Ti interessa visionare l'immobile?

Fissa un appuntamento  Fissa un appuntamento

Richiedi informazioni

Clicca su Leggi per aprire l'informativa
* Questi campi sono obbligatori
Affiliato
Studio Francavilla Srl
Viale Lilla Vincenzo, 77 72021 Francavilla Fontana (BR)

Il nostro staff


  • Marco Lotti
    Affiliato

  • Desire Corvino
    Responsabile

  • Carmela Donatiello
    Collaboratrice

  • Marinunzia Nisi
    Collaboratrice

  • Gabriele Palumbo
    Collaboratore
Viale Lilla Vincenzo, 77 72021 Francavilla Fontana (BR)
Zona: Francavilla Fontana
Mostra su mappa
Orari: LUN 10.00/13.00 - 16.00/20.00 MAR - MER - GIO 09.00/13.00 - 16.00/20.00 VEN 09.00/13.00 - 16.00/18.00 SAB 09.00/13.00
Affiliato
Studio Francavilla Srl
Viale Lilla Vincenzo, 77 72021 Francavilla Fontana (BR)

2026 Tecnocasa Franchising S.p.A. - P. IVA 08365160152 - Via Monte Bianco 60/A 20089 Rozzano (MI). Ogni agenzia ha un proprio titolare ed è autonoma. Privacy policy | Policy utilizzo | Cookie policy