Casa indipendente in vendita

Oria, Via Monte Nero
€ 40.000
5 locali 5 locali
115 Mq 115 Mq
1 bagno 1 bagno

Casa indipendente in vendita

Oria, Via Monte Nero

Descrizione annuncio

VIA MONTE NERO - ORIA

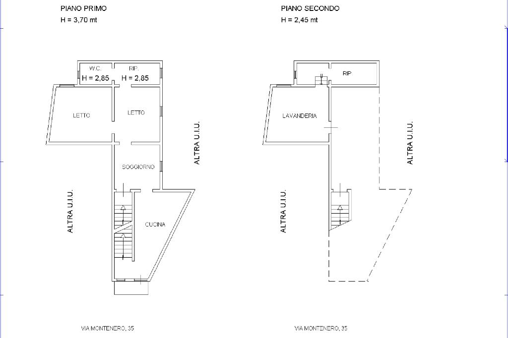
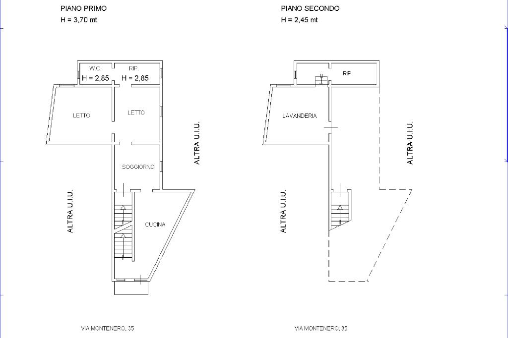
Questa proposta immobiliare indipendente, situata al primo piano, si presenta come un'ottima opportunità di investimento per chi desidera una soluzione da personalizzare.

L'immobile gode di un accesso autonomo e si sviluppa su una pianta funzionale che valorizza l'ampiezza degli ambienti e l'indipendenza della struttura.

L'ingresso principale, spazioso e ben distribuito, funge da snodo centrale verso i diversi vani della casa. La zona giorno comprende una cucina luminosa, caratterizzata dalla presenza di un camino e dall'accesso diretto al balcone privato.

Un soggiorno separato conduce alla camera da letto, garantendo una netta divisione tra l'area conviviale e la zona notte.

Un ulteriore elemento distintivo è il disimpegno tecnico, anch'esso dotato di un secondo camino, che precede il bagno e offre spunti interessanti per una ridistribuzione moderna degli spazi interni.

La doppia presenza di camini e l'esposizione favorevole rendono questa proprietà una base solida per la realizzazione di un appartamento moderno dal carattere distintivo, situato in un contesto privo di oneri condominiali.

Vieni a trovarci in filiale, siamo in Viale Lilla, 81 per maggiori informazioni e seguici sui nostri canali social.

Scaricate la nostra App GRATUITAMENTE sul Vostro Smartphone per restare aggiornati sulle Nostre proposte e visitate le nostre proposte su Francavilla Fontana.

Mostra tutto

Nelle vicinanze

Trasporto pubblico Trasporto pubblico
stazione di Oria
stazione di Oria
1,2 Km
Trasporto pubblico
260 m
Scuole Scuole
Liceo Scientifico Vincenzo Lilla
880 m
Farmacia Farmacia
Pistone Dr. Leonardo
230 m
Dottoressa Musto
350 m
Manisco Capozza Dr. Silvia
510 m
Antonecchi Dr. Silvana Olga
650 m
Farmacia Santi Medici
1,1 Km
Supermercati Supermercati
Di Meglio
770 m
Eurospin
1,4 Km
Negozi Negozi
Euro Quality Food
720 m
Bar Bar
Kenya
400 m
Ristoranti Ristoranti
Intra Moenia
370 m
Fuori Porta
390 m
Ristoranti
760 m
Mostra tutto

Caratteristiche

Rif.:
61169918
Piano:
1 di 1 (Piano alto)
Terrazzi:
1
Camere da letto:
1
Arredamento:
Assente
Condizionamento:
Assente
Mostra tutto
Prezzo Prezzo
€ 40.000
Rata mutuo Rata mutuo
€ 190 / mese
Spese annue Spese annue
€ 0
Proponi il tuo prezzoProponi il tuo prezzo

Classe Energetica

G
G
G
G
G
G
G
G
G
EP globale non rinnovabile:
175.00 kW h/m² anno
EP globale rinnovabile:
175.00 kW h/m² anno
EP invernale del fabbricato:
EP estiva del fabbricato:
Anno di costruzione:
1970
Riscaldamento:
Assente

Ti interessa visionare l'immobile?

Fissa un appuntamento  Fissa un appuntamento

Richiedi informazioni

Clicca su Leggi per aprire l'informativa
* Questi campi sono obbligatori

Calcola il tuo mutuo

Semplice e senza impegno
Anticipo

( % )
Mutuo

( % )

pochi semplici passi

inserisci i tuoi dati
Questionario completato
Grazie per aver richiesto un appuntamento senza impegno con un nostro Consulente del Credito e Assicurativo.

Hai inserito correttamente tutti i dati necessari e a breve riceverai una e-mail con un link da convalidare per inviare i tuoi dati.
Affiliato
Studio Francavilla Srl
Viale Lilla Vincenzo, 77 72021 Francavilla Fontana (BR)

Il nostro staff


  • Marco Lotti
    Affiliato

  • Desire Corvino
    Responsabile

  • Carmela Donatiello
    Collaboratrice

  • Marinunzia Nisi
    Collaboratrice

  • Gabriele Palumbo
    Collaboratore
Viale Lilla Vincenzo, 77 72021 Francavilla Fontana (BR)
Zona: Francavilla Fontana
Mostra su mappa
Orari: LUN 10.00/13.00 - 16.00/20.00 MAR - MER - GIO 09.00/13.00 - 16.00/20.00 VEN 09.00/13.00 - 16.00/18.00 SAB 09.00/13.00
Affiliato
Studio Francavilla Srl
Viale Lilla Vincenzo, 77 72021 Francavilla Fontana (BR)

2026 Tecnocasa Franchising S.p.A. - P. IVA 08365160152 - Via Monte Bianco 60/A 20089 Rozzano (MI). Ogni agenzia ha un proprio titolare ed è autonoma. Privacy policy | Policy utilizzo | Cookie policy