Casa indipendente in vendita

Francavilla Fontana, Via S. Francesco
€ 124.000
4 locali 4 locali
182 Mq 182 Mq
1 bagno 1 bagno

Casa indipendente in vendita

Francavilla Fontana, Via S. Francesco

Descrizione annuncio

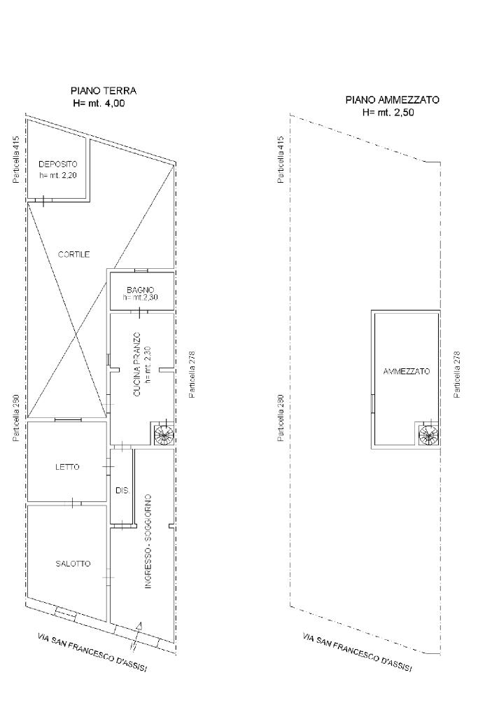
In via San Francesco, proponiamo in vendita una casa indipendente di 182 mq.

Situata al piano terra, questa proprietà offre un ampi spazi esterni, e la possibilita' di ottenere un secondo accesso sul retro.

Il punto di forza è il lastrico solare libero, non è semplice infatti trovare una soluzione completamente indipendente.

La soluzione si presta perfettamente a progetti di sviluppo immobiliare, offrendo l'opportunità di trasformare l'immobile in una residenza personalizzata.

Gli ampi spazi esterni rappresentano un valore aggiunto, permettendo di creare un ambiente abitativo che rispecchi le proprie esigenze e desideri.

La posizione strategica e le caratteristiche dell'immobile lo rendono un'opportunità interessante per chi cerca un investimento nel settore immobiliare o per chi desidera realizzare una casa su misura.

Mostra tutto

Nelle vicinanze

Trasporto pubblico Trasporto pubblico
Francavilla Fontana
Francavilla Fontana
440 m
Ricariche auto elettriche Ricariche auto elettriche
Eneldrive Stazione FS Francavilla Fontana
400 m
Eneldrive Municipio
850 m
Scuole Scuole
Istituto Tecnico Industriale Statale "E. Fermi"
80 m
Secondo Istituto Comprensivo plesso di scuola dell'infanzia "G. Di Summa"
260 m
Scuola Media "San Francesco d'Assisi"
280 m
Liceo Scientifico Statale "Francesco Ribezzo"
320 m
Istituto Commerciale "G. Calò"
330 m
Farmacia Farmacia
Farmacia del leone
680 m
Ospedali Ospedali
Pronto Soccorso Ospedale Francavilla Fontana
1,7 Km
Ospedale Dario Camberlingo
1,8 Km
Negozi Negozi
Sapori di Pane
400 m
Bar Bar
Candita Tommaso
470 m
Giba bar
650 m
Mostra tutto

Caratteristiche

Rif.:
60853311
Piano:
Terra con giardino di 1
Totale piani:
1
Terrazzi:
1
Camere da letto:
3
Arredamento:
Assente
Mostra tutto
Prezzo Prezzo
€ 124.000
Rata mutuo Rata mutuo
€ 585 / mese
Spese annue Spese annue
€ 0
Proponi il tuo prezzoProponi il tuo prezzo

Classe Energetica

G
G
G
G
G
G
G
G
G
EP globale non rinnovabile:
175.00 kW h/m² anno
EP globale rinnovabile:
175.00 kW h/m² anno
Anno di costruzione:
1967
Riscaldamento:
Assente

Ti interessa visionare l'immobile?

Fissa un appuntamento  Fissa un appuntamento

Richiedi informazioni

Clicca su Leggi per aprire l'informativa
* Questi campi sono obbligatori

Calcola il tuo mutuo

Semplice e senza impegno
Anticipo

( % )
Mutuo

( % )

pochi semplici passi

inserisci i tuoi dati
Questionario completato
Grazie per aver richiesto un appuntamento senza impegno con un nostro Consulente del Credito e Assicurativo.

Hai inserito correttamente tutti i dati necessari e a breve riceverai una e-mail con un link da convalidare per inviare i tuoi dati.
Affiliato
Studio Francavilla Srl
Viale Lilla Vincenzo, 77 72021 Francavilla Fontana (BR)

Il nostro staff


  • Marco Lotti
    Affiliato

  • Desire Corvino
    Responsabile

  • Carmela Donatiello
    Collaboratrice

  • Teodora Meo
    Coordinatrice

  • Marinunzia Nisi
    Collaboratrice

  • Gabriele Palumbo
    Collaboratore
Viale Lilla Vincenzo, 77 72021 Francavilla Fontana (BR)
Zona: Francavilla Fontana
Mostra su mappa
Orari: LUN 10.00/13.00 - 16.00/20.00 MAR - MER - GIO 09.00/13.00 - 16.00/20.00 VEN 09.00/13.00 - 16.00/18.00 SAB 09.00/13.00
Affiliato
Studio Francavilla Srl
Viale Lilla Vincenzo, 77 72021 Francavilla Fontana (BR)

2025 Tecnocasa Franchising S.p.A. - P. IVA 08365160152 - Via Monte Bianco 60/A 20089 Rozzano (MI). Ogni agenzia ha un proprio titolare ed è autonoma. Privacy policy | Policy utilizzo | Cookie policy