Casa indipendente in vendita

Francavilla Fontana, Via Giosuè Carducci
€ 200.000
4 locali 4 locali
130 Mq 130 Mq
1 bagno 1 bagno

Casa indipendente in vendita

Francavilla Fontana, Via Giosuè Carducci

Descrizione annuncio

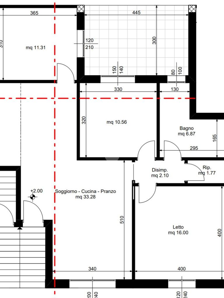
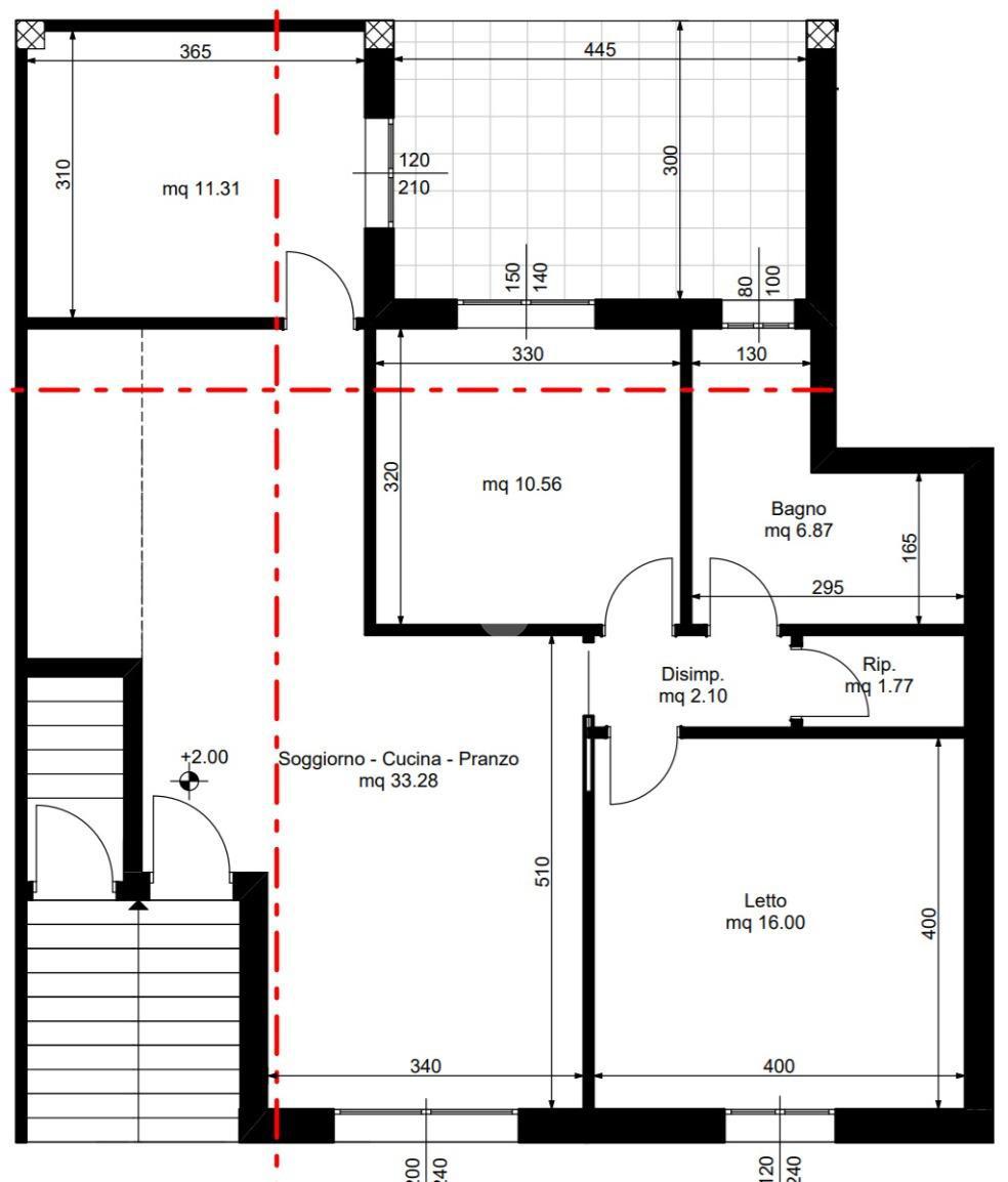
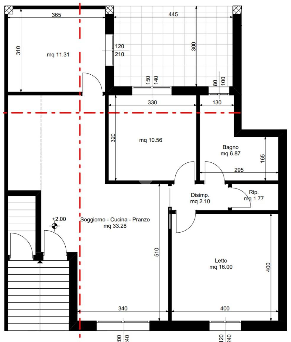
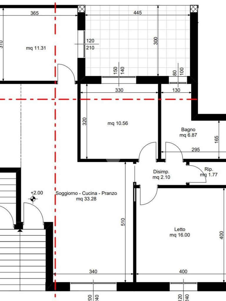
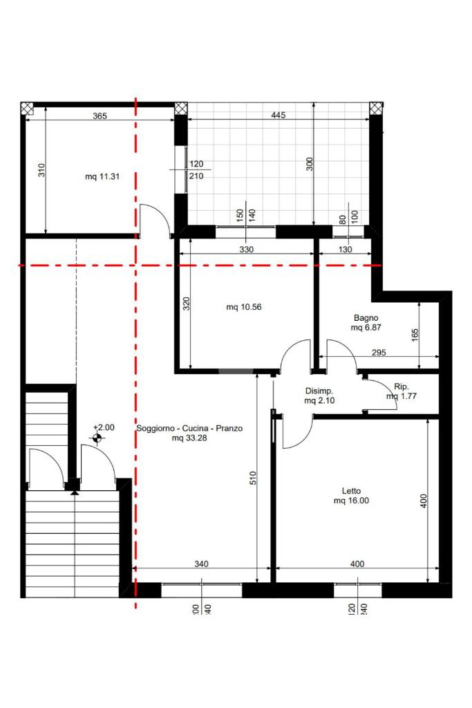
INDIPENDENTE - PIANO RIALZATO CON ORTALE

Nel comune di Francavilla Fontana, proponiamo in vendita questa abitazione di nuova costruzione, pronta a soddisfare le esigenze di chi cerca comfort e modernità.

Con una superficie di circa 110 mq circa e un ampio ortale di pertinenza, l'immobile si distingue per l'ampia metratura e la disposizione funzionale degli spazi.

Situata al piano rialzato, l'immobile offre un ampio open space, ideale per momenti di convivialita' e l'affaccio sull'ortale e dalla finestra a prospetto, garantisce luminosità e un'atmosfera accogliente.

La zona notte da la possibilita' di ottenere due o tre camere da letto, una camera doppia e due camerette perfette per famiglie o per chi necessita di spazi aggiuntivi.

È inoltre possibile acquistare un box auto, aggiungendo praticità alla vostra nuova casa. Una soluzione abitativa che unisce modernità e funzionalità.

L' ingresso di questa abitazione sarà completamente indipendente.

Possibilita' di personalizzare gli spazi secondo le vostre esigenze.

- Il capitolato completo ed esclusivo vi garantirà personalizzazioni uniche e ricercate ed anche in questo caso l'obiettivo è stato quello di avere fornitori all'altezza di un progetto ambizioso.

Acquistare una casa in classe energetica A, vi assicura risparmio economico nella gestione della casa, sicurezza dell'investimento nel tempo, benessere abitativo e infine una scelta responsabile verso l'ambiente e le generazioni future.

- Predisposizione impianto fotovoltaico, allarme e condizionamento

- Sanitari in vetrochina bianca sospesi.

- Tapparelle elettriche.

Vieni a trovarci in Viale Vincenzo Lilla, 77 per maggiori info.

Clicca e metti MI PIACE alla nostra pagina facebook TECNOCASA FRANCAVILLA FONTANA per essere aggiornato sulle nostre soluzioni.

Scaricate la nostra App GRATUITAMENTE sul Vostro Smartphone per restare aggiornati sulle Nostre proposte e visitate le nostre proposte su Francavilla Fontana

Mostra tutto

Nelle vicinanze

Trasporto pubblico Trasporto pubblico
Francavilla Fontana
Francavilla Fontana
1,0 Km
Ricariche auto elettriche Ricariche auto elettriche
Eneldrive Municipio
550 m
Eneldrive Stazione FS Francavilla Fontana
970 m
Scuole Scuole
Scuola Elementare
280 m
primo istituto comprensivo Publio Virgilio Marone
390 m
Secondo Istituto Comprensivo "M. Montessori"
620 m
Secondo Istituto Comprensivo plesso "G. Calò"
650 m
I.I.S.S. "Vincenzo Lilla" - Sede Amministrativa - Liceo Classico
700 m
Farmacia Farmacia
Farmacia del leone
300 m
Ospedali Ospedali
Pronto Soccorso Ospedale Francavilla Fontana
950 m
Ospedale Dario Camberlingo
960 m
Negozi Negozi
Sapori di Pane
1,4 Km
Bar Bar
Giba bar
370 m
Candita Tommaso
1,5 Km
Mostra tutto

Caratteristiche

Rif.:
61120470
Piano:
1 di 1 (Piano rialzato)
Balconi:
1
Camere da letto:
2
Arredamento:
Assente
Condizionamento:
Autonomo
Mostra tutto
Prezzo Prezzo
€ 200.000
Rata mutuo Rata mutuo
€ 922 / mese
Spese annue Spese annue
€ 0
Proponi il tuo prezzoProponi il tuo prezzo

Classe Energetica

A1
A1
A1
A1
A1
A1
A1
A1
A1
EP invernale del fabbricato:
EP estiva del fabbricato:
Anno di costruzione:
2025
Riscaldamento:
Autonomo
Tipo impianto:
A radiatori
Tipo alimentazione:
Metano

Ti interessa visionare l'immobile?

Fissa un appuntamento  Fissa un appuntamento

Richiedi informazioni

* Questi campi sono obbligatori

Calcola il tuo mutuo

Semplice e senza impegno
Anticipo

( % )
Mutuo

( % )

pochi semplici passi

inserisci i tuoi dati
Questionario completato
Grazie per aver richiesto un appuntamento senza impegno con un nostro Consulente del Credito e Assicurativo.

Hai inserito correttamente tutti i dati necessari e a breve riceverai una e-mail con un link da convalidare per inviare i tuoi dati.
Affiliato
Studio Francavilla Srl
Viale Lilla Vincenzo, 77 72021 Francavilla Fontana (BR)

Il nostro staff


  • Marco Lotti
    Affiliato

  • Desire Corvino
    Responsabile

  • Carmela Donatiello
    Collaboratrice

  • Teodora Meo
    Coordinatrice

  • Marinunzia Nisi
    Collaboratrice

  • Gabriele Palumbo
    Collaboratore
Viale Lilla Vincenzo, 77 72021 Francavilla Fontana (BR)
Zona: Francavilla Fontana
Mostra su mappa
Orari: LUN 10.00/13.00 - 16.00/20.00 MAR - MER - GIO 09.00/13.00 - 16.00/20.00 VEN 09.00/13.00 - 16.00/18.00 SAB 09.00/13.00
Affiliato
Studio Francavilla Srl
Viale Lilla Vincenzo, 77 72021 Francavilla Fontana (BR)

2025 Tecnocasa Franchising S.p.A. - P. IVA 08365160152 - Via Monte Bianco 60/A 20089 Rozzano (MI). Ogni agenzia ha un proprio titolare ed è autonoma. Privacy policy | Policy utilizzo | Cookie policy