Villa singola in vendita

Francavilla Fontana, Contrada Pernicocca
€ 109.000
3 locali 3 locali
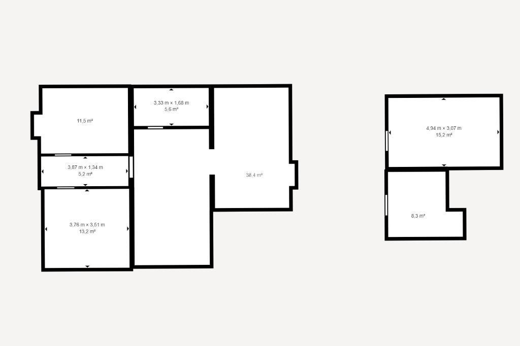
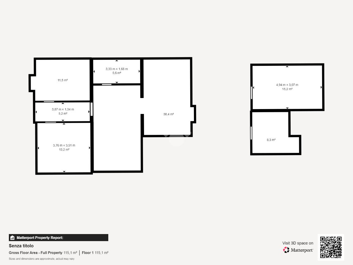
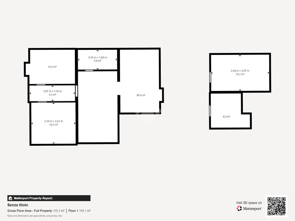
126 Mq 126 Mq
1 bagno 1 bagno

Villa singola in vendita

Francavilla Fontana, Contrada Pernicocca

Descrizione annuncio

VILLA ABITABILE A POCHI PASSI DA FRANCAVILLA FONTANA

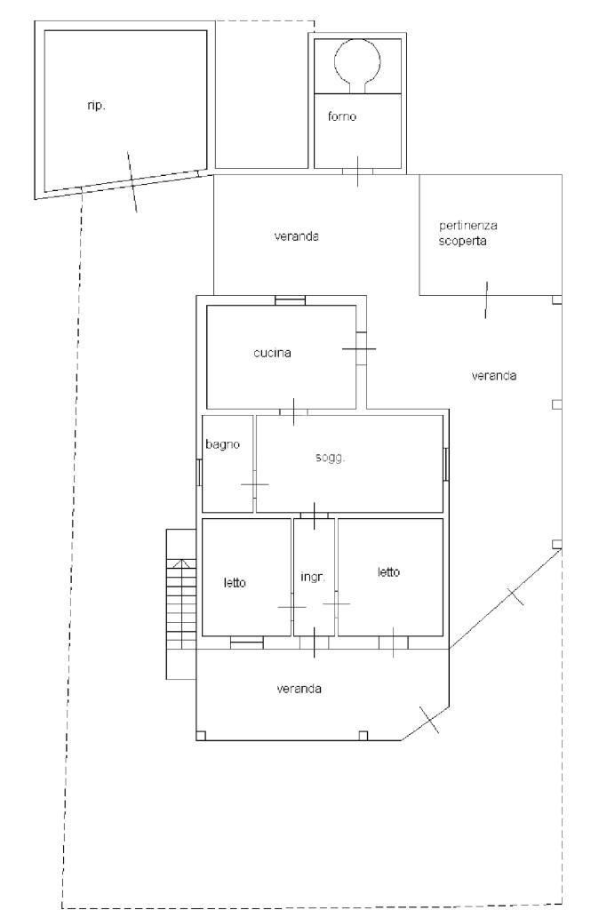
Immagina di vivere circondato dal verde e dal silenzio, ma a circa 1 km dal cuore di Francavilla Fontana. In Contrada Pernicocca, direzione Brindisi, ti proponiamo una villa indipendente su piano rialzato che unisce comfort, privacy e autenticità. La proprietà si estende su un terreno di circa 4.544 mq, completamente recintato, dove potrai goderti momenti di relax, coltivare il tuo orto o organizzare pranzi all’aperto sotto l'ampia la veranda balconata. La villa di circa 126 mq è composta da una zona giorno luminosa:cucina con camino,ampio soggiorno che si affaccia sulla comoda veranda sul retro che include un cucinotto esterno. Il forno e cucina esterna in muratura: perfetti per grigliate in compagnia. La zona notte è composta invece da due camere doppie, illuminate da ampie finestre, e dotate di aria condizionata. Il bagno dispone di un comodo box doccia. Per l'approvvigionamento idrico vi è sia Pozzo che cisterna. L' Ampio piazzale permette di parcheggiare la propria auto esternamente, sul retro la villa dispone anche di un comodo garage coperto e di una rimessa. Il giardino ornamentale, ben curato, fa da cornice a tutto l'ambiente circostante. Cancello elettrico, stufa a pellet.

Vieni a trovarci in filiale, siamo in Viale Lilla,77 per maggiori informazioni e seguici sui nostri canali social.

Presso la nostra filiale, è possibile, su richiesta, grazie ai professionisti della società di mediazione creditizia del gruppo Kìron ricevere una consulenza ed accedere ad un'ampia gamma di prodotti creditizi e assicurativi.
La consulenza è gratuita.

Mostra tutto

Nelle vicinanze

Trasporto pubblico Trasporto pubblico
stazione di Oria
stazione di Oria
2,6 Km
Scuole Scuole
Liceo Scientifico Vincenzo Lilla
3,0 Km
Ristoranti Ristoranti
Ristoranti
2,4 Km
Mostra tutto

Caratteristiche

Rif.:
61117353
Piano:
1 di 1 (Piano rialzato)
Box:
1
Posti auto:
2
Terrazzi:
1
Camere da letto:
2
Mostra tutto
Prezzo Prezzo
€ 109.000
Rata mutuo Rata mutuo
€ 484 / mese
Spese annue Spese annue
€ 0
Proponi il tuo prezzoProponi il tuo prezzo

Classe Energetica

G
G
G
G
G
G
G
G
G
EP globale non rinnovabile:
175.00 kW h/m² anno
EP globale rinnovabile:
175.00 kW h/m² anno
EP invernale del fabbricato:
EP estiva del fabbricato:
Anno di costruzione:
1979
Riscaldamento:
Autonomo
Tipo impianto:
A stufa
Tipo alimentazione:
Altro

Ti interessa visionare l'immobile?

Fissa un appuntamento  Fissa un appuntamento

Richiedi informazioni

* Questi campi sono obbligatori

Calcola il tuo mutuo

Semplice e senza impegno
Anticipo

( % )
Mutuo

( % )

pochi semplici passi

inserisci i tuoi dati
Questionario completato
Grazie per aver richiesto un appuntamento senza impegno con un nostro Consulente del Credito e Assicurativo.

Hai inserito correttamente tutti i dati necessari e a breve riceverai una e-mail con un link da convalidare per inviare i tuoi dati.
Affiliato
Studio Francavilla Srl
Viale Lilla Vincenzo, 77 72021 Francavilla Fontana (BR)

Il nostro staff


  • Marco Lotti
    Affiliato

  • Desire Corvino
    Responsabile

  • Carmela Donatiello
    Collaboratrice

  • Teodora Meo
    Coordinatrice

  • Marinunzia Nisi
    Collaboratrice

  • Gabriele Palumbo
    Collaboratore
Viale Lilla Vincenzo, 77 72021 Francavilla Fontana (BR)
Zona: Francavilla Fontana
Mostra su mappa
Orari: LUN 10.00/13.00 - 16.00/20.00 MAR - MER - GIO 09.00/13.00 - 16.00/20.00 VEN 09.00/13.00 - 16.00/18.00 SAB 09.00/13.00
Affiliato
Studio Francavilla Srl
Viale Lilla Vincenzo, 77 72021 Francavilla Fontana (BR)

2025 Tecnocasa Franchising S.p.A. - P. IVA 08365160152 - Via Monte Bianco 60/A 20089 Rozzano (MI). Ogni agenzia ha un proprio titolare ed è autonoma. Privacy policy | Policy utilizzo | Cookie policy